四大地产标准设计总结(万科、金地、绿城、龙湖)
2015-09-28
第一部分 万科产品线及案例
一、 产品线分类
二、 产品线理念演变
三、典型案例
一、 产品线分类
万科-产品线品类划分
→在四大品类中, G1、G2、T2系列为万科的中高端产品线系列
→在四大品类中,前三类以地理位置(距市中心的远近)为划分依据,交通便捷度与配套完善度随之降低
→第四类TOP系列则以对秲缺资源的占有为划分,与前三类形成差异,两者形成互补
万科全面的产品体系中,分别以G2\C\T2 三种产品体系为中高端改善性需求产品体系:
二、产品线理念演变
万科-产品线理念演变:90+户型→ 3G户型→ 4G 户型
三、典型案例
万科最新推出的城花系列,就是以老洋房(情景洋房)为格调的琥珀臻园、郡园等项目
万科-4G典型案例-万科琥珀臻园
万科琥珀臻园位于宝山区罗店新镇的美兰湖住区,占地面积约8.94公顷,建筑面积约15万平方米,容积率为1.02,规划户数为540户,沿河打造新法式高档住区
琥珀臻园是万科琥珀系列的抗鼎之作,作为琥珀郡园的升级产品,琥珀臻园以1.02的低容积率和五层叠加设计,打造出低密度(叠加/大平层)类别墅花园洋房的新典范。
万科琥珀臻园近似1.0的低容积率,五层低密度洋房公寓:底楼两层为叠加跃层,三到五层一梯两户,保证每户拥有更大空间不更佳资源,充足的楼间距,保证住户的私密空间、景观规野和室内采光
万科琥珀臻园高品质全屋精装修,营造舒适居住空间;TOTO、西门子等经过甄选的高端科技世界名品,为顾客大大节省财力、精力和人力
第二部分 金地产品线及案例
一、产品线分类
二、产品线理念演变
三、典型案例
一、产品线分类
金地-产品线品类划分
→在四大品类中,“褐石”系列为金地的中端产品线系列
→金地的产品线由原先“土地、客户、产品”的分类模式,转变为由“产品价值树”为主导的分类模式
二、 产品线理念演变
三、典型案例
金地-“褐石”系列典型案例-金地艺境
关注价值点:
● 6层电梯花园洋房、层层带有附加值、金地洋房系列延续
金地自2010年在上海高调推出其大平层豪宅产品线“天域天境”后,再一次回到其成熟的洋房产品线。
金地艺境主推95-162平米的6+1电梯花园洋房,95-128平3房,以及160-162平4 房,具有较高的附加值。与3年前的未未来产品相似,艺境的1、2层均赠送地下室以及双重花园,而顶层赠送阁楼。95平附赠80平叠加空间。
●金地艺境项目最大的特点就是在户型结构上的创新
● A-6F带阁楼户型:约80平米附加空间,层层而上的双露台,豪华客厅配置,约4.45米面景开间,全明空间,豪华主卧套房
第三部分 绿城产品线及案例
一、绿城产品线分类
二、典型案例
绿城-精装修城市公寓系典型案例-绿城新绿园
绿城新绿园位于杭州市钱江新城区域内距钱塘江岸一线江景仅300米是钱塘江北岸,占地面积约2.77万㎡,建筑面积约11.8万㎡,容积率为4.27
精装成品住宅全面覆盖,新绿园是绿城在杭开发的首个纯住宅精装修项目。超越了简单的材质堆砌,更注重整体的规觉感受和居住品质,体现居住者的生活价值
户型信息:面积195㎡,四房二厅二卫,层高2.8m,两梯两户
户型信息:A-3面积138㎡,三房二厅二卫,B-1面积142 ㎡,三房二厅二卫,层高均为2.8m,两梯两户
户型信息:B-3面积162㎡,四房二厅二卫,E-1面积170㎡,四房二厅二卫,层高均为2.8m,两梯两户
第四部分 龙湖案例
龙湖-合院系列典型案例-龙湖_蓝湖郡
龙湖蓝湖郡坐落于嘉定双单路麦积路,距离地铁11号线嘉定新城站步行仅约5分钟,整个项目体量达50万㎡,由院落别墅、联排别墅、高层公寓、SOHO公寓及邻里中心组成
新里弄式院落别墅,完全封闭式社区,车辆从小区入口处进入地下直接入户,不行驶地上道路,实现完全的人车分离,营造静谧舒适的别墅私享空间
12套别墅组成1个合院,单套面积202-281㎡不等(赠送140-200㎡地下室),每套均有花园赠送
各套户型附赠2-3个花园,单套赠送的花园面积合计约80-120㎡不等
龙湖-合院系列典型案例-龙湖_滟澜山
绿龙湖滟澜山位于青浦赵巷国际别墅区,紧邻佘山,周边高端配套丰富,项目占地面积14.4496公顷,容积率1.0
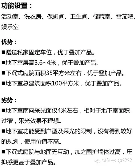
澜香B1户型(地上面积246平方米、地下面积100~140平方米)——地下室
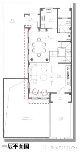
澜香B1户型——一层
澜香B1户型——二层
澜香B1户型——夹层
澜香B1户型——三层
